SITUATION
Environnement privilégié. En prolongation du village de Lussy-sur-Morges, le projet est situé dans un écrin de verdure et de vignes. Il est privilégié par une vue exceptionnelle sur les Alpes et le lac Léman.
L’élaboration d’un plan de quartier a permis de mettre en place un projet de qualité tenant compte de l’environnement, tel que la proximité du village et la zone viticole. Un soin particulier a été porté sur l’intégration du projet, notamment par l’absence de tous véhicules en surface, où seuls des jardins privatifs arborés et leurs dégagements importants prennent place.
PROGRAMME
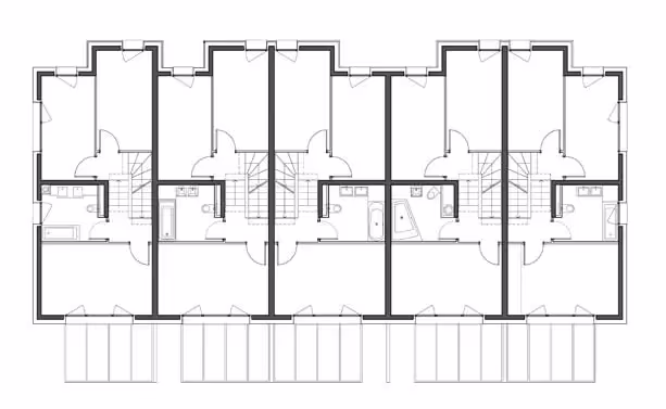
Vingt villas mitoyennes. Le projet comprend vingt villas réparties en quatre ensembles de cinq habitations mitoyennes. Deux parkings souterrains relient chacun deux groupes d’habitations. L’étude préliminaire a mis en évidence l’intérêt de construire une entité homogène dans le prolongement du centre villageois, resté très rural. Cette approche représente une option plus adaptée au bâti existant, tout en proposant une architecture résolument moderne, rappelant l’esprit villageois par petites touches, tels que la toiture à deux pans recouverte de tuiles en terre cuite ou le bardage en lames d’épicéa des oriels en façades nord. La forme et la pente du terrain ont conduit à opter pour une typologie en demi-niveaux. Elle permet également d’offrir des perspectives intérieures intéressantes. Comme au rez-de-chaussée où depuis la cuisine on peut profiter d’une vue traversante sur le séjour, la véranda et le jardin.
Chaque villa bénéficie de deux places de parking, d’une cave, d’une buanderie au sous-sol, d’un séjour, d’une grande véranda avec jardin au rez-de-chaussée, trois chambres-à-coucher avec une salle d’eau par étage et d’une grande pièce destinée à une salle de jeux ou à un bureau dans les combles. La préoccupation du maître de l’ouvrage a été de mettre à disposition des logements de qualité offrant de belles finitions. Chaque villa dispose d’environ 215 m2 de surface utile.
PROJET
Optimisation des surfaces. La réponse des projeteurs au programme fixé par les promoteurs, consiste en un plan général très organisé, favorisant des accès peu gourmands en surface de terrain, les îlots construits prenant partiellement place sur les sous-sols de garages, avec des places de parcs visiteurs contenues en bordure du périmètre construit.
Les demi-niveaux offrent une composition spatiale attrayante et un degré de transparence intérieur intéressant pour une typologie compacte. Ainsi les habitations épousent la déclivité du terrain avec des espaces qui se prolongent vers l’extérieur par les vérandas, les jardins et les terrasses privatifs. Les diverses fonctions de l’habitat trouvent une définition naturelle à l’intérieur des volumes principaux. Cette disposition spatiale originale, alliée au confort d’un accès direct et individuel du parking à la villa, est appréciée comme un réel supplément qualitatif par rapport aux standards de l’habitat traditionnel.
Le projet est certifié “Minergie”. Les bâtiments répondent à des normes constructives classiques, tenant compte des exigences élevées du programme Minergie. Chaque unité est autonome de par son chauffage alimenté par des sondes géothermiques reliées par une pompe à chaleur et de la production d’eau chaude fournie par des panneaux solaires. Les menuiseries extérieures sont équipées de double vitrage monté sur cadres en PVC. Des stores à lamelles orientables en aluminium thermolaqué, à commande manuelle, équipent les chambres et pièces de jour. Les revêtements intérieurs sont composés de papier peint renforcé par fibre de verre pour les murs et de carrelage et de parquet en chêne pour les sols.




















