Maîtres d’Ouvrage
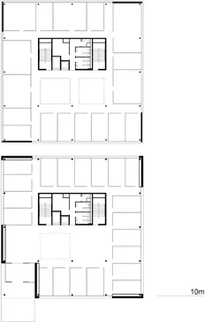
Bâtiments administratifs et commerces
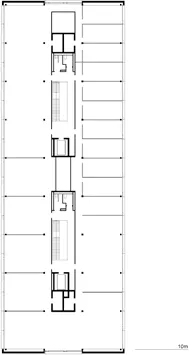
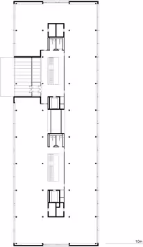
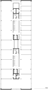
Industrie - Artisanat
22/1891
Vaud
Ecublens, Vaud
LinkedIn
Lien copié